| Параметр | Значение |
| Рабочая среда
| Пар, вода, горячая вода, воздух,
инертные газы, масла, слабые кислоты и щелочи, спирт |
| Материал
|
Корпуса клапана: нержавеющая сталь
Корпуса привода: нейлон Уплотнения: PTFE |
| Температура рабочей среды клапана
| −10...+180°С
|
| Рабочее давление клапана | 0...1,6 МПа |
| Диаметр условного прохода | 15...50 мм |
| Присоединение | Резьбовое K½"...K2" |
| Управляющая среда | Воздух, нейтральные газы |
| Управляющее давление | 0,4...0,7 МПа |
| Присоединение воздуховодов | G¼" |
| Присоединение индикатора | М26×1,5 |
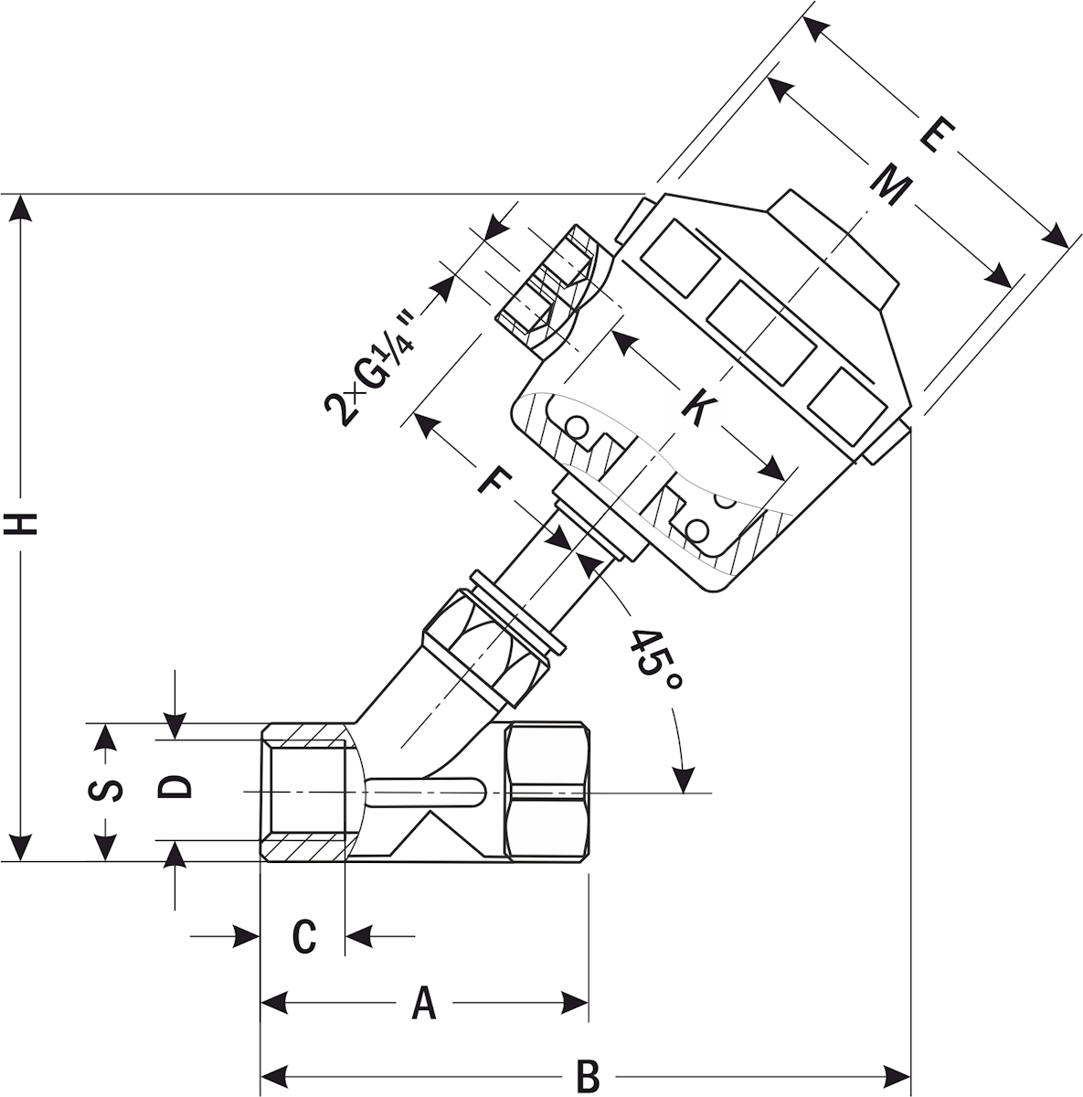
|
Обозначение
|
Ду,
мм
|
Дэф,
мм
|
Внутр.
диаметр
привода,
мм
|
Kv,
м³/ч
|
Присоединение
|
Мах рабочее
давление среды, МПа | Вес, г | ||
|
Клапана
|
Воздуховодов
| Индикатора | |||||||
| УПК10-2-050х015-N KSP | 15 | 13 | 50 | 5 |
K½"
|
G¼"
| М26×1,5 | 1,6 | 595 |
| УПК10-2-050х020-N KSP | 20 | 18 | 50 | 10 | K¾" | 1,6 | 653 | ||
| УПК10-2-050х025-N KSP | 25 | 22 | 50 | 18 | K1" | 1,6 | 838 | ||
| УПК10-2-063х032-N KSP | 32 | 28 | 63 | 23 | K1¼" | 1,4 | 1469 | ||
| УПК10-2-063х040-N KSP | 40 | 35 | 63 | 33 | K1½" | 1,3 | 1742 | ||
| УПК10-2-063х050-N KSP | 50 | 42 | 63 | 53 | K2" | 1,2 | 2244 | ||
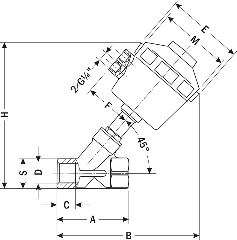
|
Модель
|
Размеры, мм
| |||||||||
|
Внутр.
диаметр
привода,
К
| M | D | A | B | C | E | F | H | S
| |
| УПК10-2-050х015-N KSP | 50 | 63 | K½" | 79 | 150 | 12 | 64,5 |
45
| 148 | 25 |
| УПК10-2-050х020-N KSP | 50 | 63 | K¾" | 72 | 150 | 14 | 64,5 |
45
| 158 | 30 |
| УПК10-2-050х025-N KSP | 50 | 63 | K1" | 87 | 160 | 15 | 64,5 |
45
| 170 | 37 |
| УПК10-2-063х032-N KSP | 63 | 80 | K1¼" | 106 |
202
| 16 | 80,5 | 52 | 218 | 45,5 |
| УПК10-2-063х040-N KSP | 63 | 80 | K1½" |
112
| 204 | 18 | 80,5 | 52 | 228 | 52 |
| УПК10-2-063х050-N KSP | 63 | 80 | K2" | 130 | 220 | 18 | 80,5 | 52 | 250 | 65 |
| Документ | Дата изменения | Размер | Файл |
| Руководство по эксплуатации | 14.04.2026 | 0.8 Мб |
| Артикул | Диаметр условного прохода, мм | Срок поставки | Стоимость |
|---|---|---|---|
| Артикул | Диаметр условного прохода, мм | Срок поставки | Стоимость |
|---|
| Артикул | Свойства | Срок поставки | Стоимость |
|---|
| Артикул | Свойства | Срок поставки | Стоимость |
|---|
| Артикул | Диаметр условного прохода, мм | Срок поставки | Стоимость |
|---|---|---|---|
| O88398 | 15 | Со склада | 2964 руб. |
| O88399 | 20 | Со склада | 3705 руб. |
| O88400 | 25 | Со склада | 4680 руб. |
| O88402 | 40 | Со склада | 8970 руб. |
| Артикул | Диаметр условного прохода, мм | Срок поставки | Стоимость |
|---|---|---|---|
| O88398 | 15 | Со склада | 2964 руб. |
| O88399 | 20 | Со склада | 3705 руб. |
| O88400 | 25 | Со склада | 4680 руб. |
| O88401 | 32 | Под заказ к 2026.11.01 | 8268 руб. |
| O88402 | 40 | Со склада | 8970 руб. |
| O88403 | 50 | Под заказ к 2026.10.28 | 12870 руб. |
Отзывы на этот товар пока отсутствуют.




